活性炭吸附+RCO蓄热式催化燃烧系统是在活性炭+RTO蓄热式焚烧法基础上研发而成的新一代VOCs(有机废气)处理设备,相较于RTO,RCO在催化剂的作用下只需要 300℃左右(RTO 800℃以上)的起燃温度,节能、安全,完全不产生 NOX,适用于大风量、中低浓度、不含尘、干燥常温、间歇排放的有机废气处理;根据多孔活性炭的吸附净化功能以及其在高温状态下表现的脱附性质,将有机废气分别吸附和脱附,脱附后的有机物进入催化燃烧装置并在300-400 ℃进行催化氧化处理,去除效率可达 97%以上,并将有机物燃烧释放的热量有效利用,热力回收效率高达 95%以上,而催化燃烧为 30%,直接燃烧为 50%。
九通活性炭吸附+催化燃烧系统具有适用范围广、结构简单、操作便捷、净化效率高(吸附效率90-95%、催化分解97%以上)、废热回收效率高、运行成本低、无二次污染等优点!
免费热线:400-901-8969 微信手机号:17316910092
ug环球会员登录,环球ug在线注册宣传册.pptx
1.活性炭吸附+ 催化燃烧设备 产品优势
净化效率高:二室净化效率≥95%,三室净化效率≥99%,且蓄热效率高:≥95%
性能稳定:模块化标准化设计,出错概率低、质量更好,保证设备运行稳定,且交货期更快
成本低:同等条件达到相同净化效率,和分子筛吸附相比,低阻低耗,且投资成本也更低,性价比更高
针对性更强:蜂窝活性炭对漆雾、粉尘等耐久性较强,更适合于喷漆废气治理的场合
安全性高:活性炭吸附装置设置阻火、超温和超压保护措施和消防水防护设施,催化燃烧炉设系统压力、燃烧温度、燃烧风机等多种监控,安全系数高
运行费用低:本设备适用于间歇生产,生产线运行时采用连续吸附净化,生产线停机时进行脱附,根据废气产生的实际情况,吸附周期长,脱附频率低,如此催化燃烧床启动频率降低,大大减少了运行费用;可用催化燃烧处理废气产生的热量进行脱附再生,脱附后的气体再送催化燃烧室净化,不需要外加能量,运行费用低,节能效果显著
2.公司优势
集现场勘测、设计、生产、安装、售后一站式服务
10+年行业经验,案例众多,免费设计非标解决方案
诚信做人做事,不偷工减料,保品保工期,做良心项目
合同质保金、质保2年,我们有信心
活性炭吸附+RCO催化燃烧设备主要用于涂装行业、涂布行业、制药行业、印刷行业、石化行业、制革、塑料、化工等车间,有机废气处理的种类如下:碳烃化合物、苯及苯系物、醇类、酮类、酚类、醛类、酯类、胺类、腈、氰等,特别适用于大风量、中低浓度间歇排放的场合。九通有机废气处理设备已在天顺风能、远景能源、芜湖力钧轨道、中车时代、中车集团、中集集团、上海中曼石油、山东路桥、东恒宇功能材料、中国运载火箭技术研究院、青岛中集冷藏箱制造、包头国电动力、廊坊中晨石油设备、辽宁华荣重工机械等公司成功应用,实力工厂厂家,保质保工期,确保过环评。
![]() | ![]() | ![]() |
![]() | ![]() | ![]() |
![]() | ![]() | ![]() |
| 活性炭吸附工作原理 | 活性炭脱附再生装置原理(RCO催化燃烧) |
利用活性炭多微孔的吸附特性吸附有机废气是一种最有效的工业处理手段。活性炭是许多具有吸附性能的碳基物质的总称,其经过活化处理后,比表面积一般可达700-1000m2/g,具有优异和广泛的吸附能力。吸附可使有机废气净化效率高达90-95%。活性炭还是一种非极性吸附剂,具有疏水性和亲有机物的性质,它能吸附绝大部分有机气体,如苯类、醛酮类、醇类、烃类等以及恶臭物质。活性碳吸附饱和后可用热空气脱附再生使活性碳重新投入使用。 | 活性碳吸附饱和后,利用热空气将活性炭内的有机废气脱附出来,通过控制脱附过程流量可将有机废气浓度浓缩10-20倍,脱附气流经催化床内设的电加热装置加热至300℃左右,在催化剂作用下起燃,催化分解过程净化效率可达97%以上,分解后生成CO2和H2O并释放出大量热量,该热量通过催化分解床内的热交换器一部分再用来加热脱附出的高浓度废气,另外一部分加热室外来的空气,作为活性碳脱附气体使用,一般达到脱附~催化分解自平衡过程须启动电加热器1小时左右。达到热平衡后可关闭电加热装置,这样的再生处理系统靠废气中的有机溶剂做燃料,在无须外加能源基础上使再生过程达到自平衡循环,极大地减少能耗,并且无二次污染的产生,整套吸附和催化分解过程由PLC实现自动控制。 |

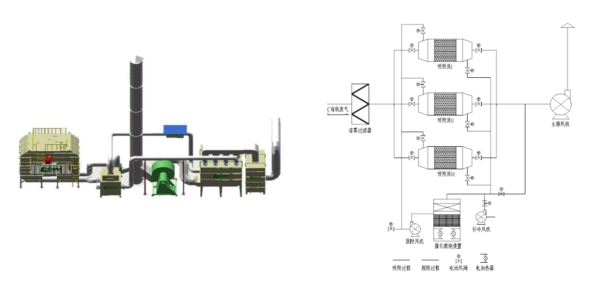
为了保证活性炭的吸附效果,在活性炭床前各设置一漆雾过滤器。整套净化装置工艺流程图及系统图如下:
有机废气→漆雾粉尘过滤→活性炭吸附→防爆排风机→烟囱达标排放
↓
催化燃烧脱附再生装置
由于漆雾、粉尘、水分的存在会影响活性炭的使用寿命,因此在活性炭吸附床之前增加一套干式过滤器,用于对有机废气中的漆雾、粉尘、水分进行进一步的过滤,九通采用VQ漆雾净化系列,是传统的干式或水洗漆雾净化产品的更新替代产品,具有“结构简单占地面积小、净化效率高(达90-99%)、运行费用低(可反复利用)、无二次污染、更新滤料及维修方便”等特点,该产品可广泛应用于家具、航空、汽车、船舶、集装箱、电器、电子等各行业喷漆漆雾的净化。
![]() | 不锈钢丝网 | ![]() | 干式玻璃纤维漆雾过滤棉 |
不锈钢丝网采用穿透型,可将较大漆雾颗粒截留的同时,为相对小的漆雾颗粒提供聚集核,其主要作用是避免较大颗粒漆雾在后续过滤介质的富集,延长后续过滤介质的使用周期。该层不锈钢丝网同时起阻火作用。 | PA-50是一种带有深负载层的漆料过滤器,它具有连续的、坚固的单丝玻璃纤维结构,捕捉率高:93%-97%;阻力低:20Pa;耐高温:最高170℃;过滤级别:G4;漆雾吸物量:3500g-4700g;采用双层过滤材料,容尘量大、阻力低、过滤风速大、阻燃、无二次污染 |
活性炭吸附设备具有吸附容量大、吸附设备小、吸附效率高、吸附脱附快、有机废气资源化利用率高等优点,净化效率可达90-95%,非常适合于大风量下使用。
![]() | ![]() | ![]() | ![]() |
| 吸附箱 | 活性炭 | 吸附风机 | 风阀执行器 |
吸附箱体的内、外壁采用Q235 t=2mm钢板制成,外部连续焊接,无气泡、夹渣等现象,整体美观 | 方孔蜂窝状活性炭块(过滤性),蜂窝结构风阻小、比表面积大(800-1000m2/g)、吸附效果好,净化效率可达90-95%,适合于大风量下使用;活性炭吸附床可用催化燃烧处理废气产生的热量进行脱附再生,脱附后的气体再送催化燃烧室净化,不需要外加能量,运行费用低,节能效果显著,同时废气净化效率高,满足环保排放标准。 | 4-72/4-73离心风机,无耐温要求,皮带轮驱动,低能耗、高效率、稳定强;多翼叶轮,叶轮材质为16Mn,噪音不大于85dB(A);风机风量、风压等参数满足设计要求 | 电动风阀执行器采用微电脑控制,在0~90°全行程范围内具有自动过载保护;运行角度可在0~90°范围内以5°为单位任意调整,使阀门最大开度设定非常方便;采用全封闭式结构,可靠性更高。 |
由阻火器、换热器、预热室、热电偶、催化分解床、防爆器、脱附风机等组成,在催化剂的作用下只需要 300℃左右(RTO 800℃以上)的起燃温度,节能、安全,完全不产生 NOX,有机废物去除效率可达 97%以上,且热力回收效率高达95%以上
![]() | ![]() | ![]() | ![]() | ![]() |
| 阻火器 | 换热器 | 热电偶 | 催化床 | 脱附风机 |
由特制的多层金属网组成,可阻止火焰通过,过滤掉气体中较大的颗粒(污物),是本净化装置的安全装置之一 | 利用催化反应放出的热量,加热进口废气,提高热能利用率,减少加热电能;内胆采用 SUS316L δ3mm 不锈钢经氩弧焊焊接制作而成,换热面积大,换热效率高,配有风压开关,无循环风时,会立即切断燃烧器,停止加热,安全性高 | 采用不锈钢保护管测量进气加热温度及净化温度 | 由多层陶瓷蜂窝体的贵金属催化剂(Pt、Pd和Au)组成,起燃温度低(200℃起燃),整体式蜂窝结构,阻力小,用低压风机可正常运转,耗电少且噪音低;去除效率高(>95%),对典型VOCs污染物达到99%以上,催化活性强、耐高温、抗氧化、耐腐蚀。催化剂本身不参与反应,反应前后基本无消耗,使用寿命长,正常使用寿命3-5年 | 采用后引风式,使本装置在负压下工作。离心风机,无耐温要求,皮带轮驱动,低能耗、高效率、稳定强;多翼叶轮,叶轮材质为16Mn,噪音不大于85dB(A);风机风量、风压等参数满足设计要求 |
安全措施部件活性炭吸附+RCO催化燃烧系统采用PLC进行自动控制,可使净化系统内的脱附循环、催化反应后余热循环不停机连续运行,稳定高效;过载、短路、缺相保护,并配有阻火除尘器、泄压口、温度超温报警、阀门PID调节装置,确保整个系统的安全性。 | ![]() |
| 序号 | 项目名称 | 参数/规格 |
|---|---|---|
| 1 | 处理风量(m3/h) | 55000 |
| 2 | 废气浓度(mg/ m3) | ≤1000 |
| 3 | 废气进口温度(℃) | ≤40 |
| 4 | 处理有机废气气体成分 | 含苯、甲苯、二甲苯的气体 |
| 5 | 净化效率 | ≥95% |
| 6 | 设备运行阻力(pa) | ≤1500 |
| 7 | 脱附功率(kw) | 48 |
| 8 | 活性炭床个数 | 4个 |
| 9 | 脱附加热时间(h) | 1-1.5 |
| 10 | 脱附时间(h) | 0.5-1 |
| 11 | 脱附温度(℃) | 80-120 |
| 12 | 活性炭种类 | 活性炭纤维 |
| 13 | 活性炭纤维厚度(mm) | 10 |
| 14 | 活性碳更换时间(年) | 2~3年 |
| 15 | 活性炭装载量(m³) | 约2 |
| 16 | 催化剂种类 | 蜂窝陶瓷贵金属催化剂 |
| 17 | 反应起燃温度 | 260℃ |
| 18 | 反应温度 | 280℃ |
| 19 | 催化剂使用寿命 | 8000-10000小时 |
| 20 | 总装机功率(kw) | 56 |
备注:设备尺寸 均为参考,可以根据客户产品尺寸设计制作。
如想量身定制 ,如 涂装生产线 、喷漆房、喷砂房等,可加微信咨询:

扫一扫立即沟 通销售
1.拥有ISO9001质量管理体系、环境管理体系双证书,为产品质量保驾护航
2.2014年被列入航空航天企业认可的高科技环保涂装企业
3.国家高新技术企业、安全生产标准化认证公司
1.完成“涂装工业机器人”、“涂装废气处理系统”、“环保循环磨料回收系统”、“复合型强力吸砂底板技术”技术创新
2.获得8项国家专利,拥有自主知识产权
3.十余年设备(标准、非标)及产线定制化项目应用实施经验,值得信赖
1.不弄虚作假,坚守质量是企业第一生命线
2.源头设备生产厂家,质保期两年(除易损易耗件),在保质的基础上保价
1.拥有一支专业培训后的施工团队,保质保期完成项目
2.售后部门实行7*24小时电话或在线服务
3.拥有北京、山东、浙江售后服务站,并具有完善售后体系,故障排除效率高